Paris14
La parcelle accueillant le projet présente des singularités qui orientent le projet dans son implantation et dans son dessin.
C’est une petite parcelle (121m2) asservie d’un contrat de cour commune et d’une servitude de vue qui impose des gabarits-enveloppes avec la parcelle voisine située en limite de fond.
Cependant, cette condition d’étroitesse est compensée par une position singulière dans le tissu urbain. En effet, le futur édifice bénéficie de deux percées visuelles remarquables et rares à Paris.
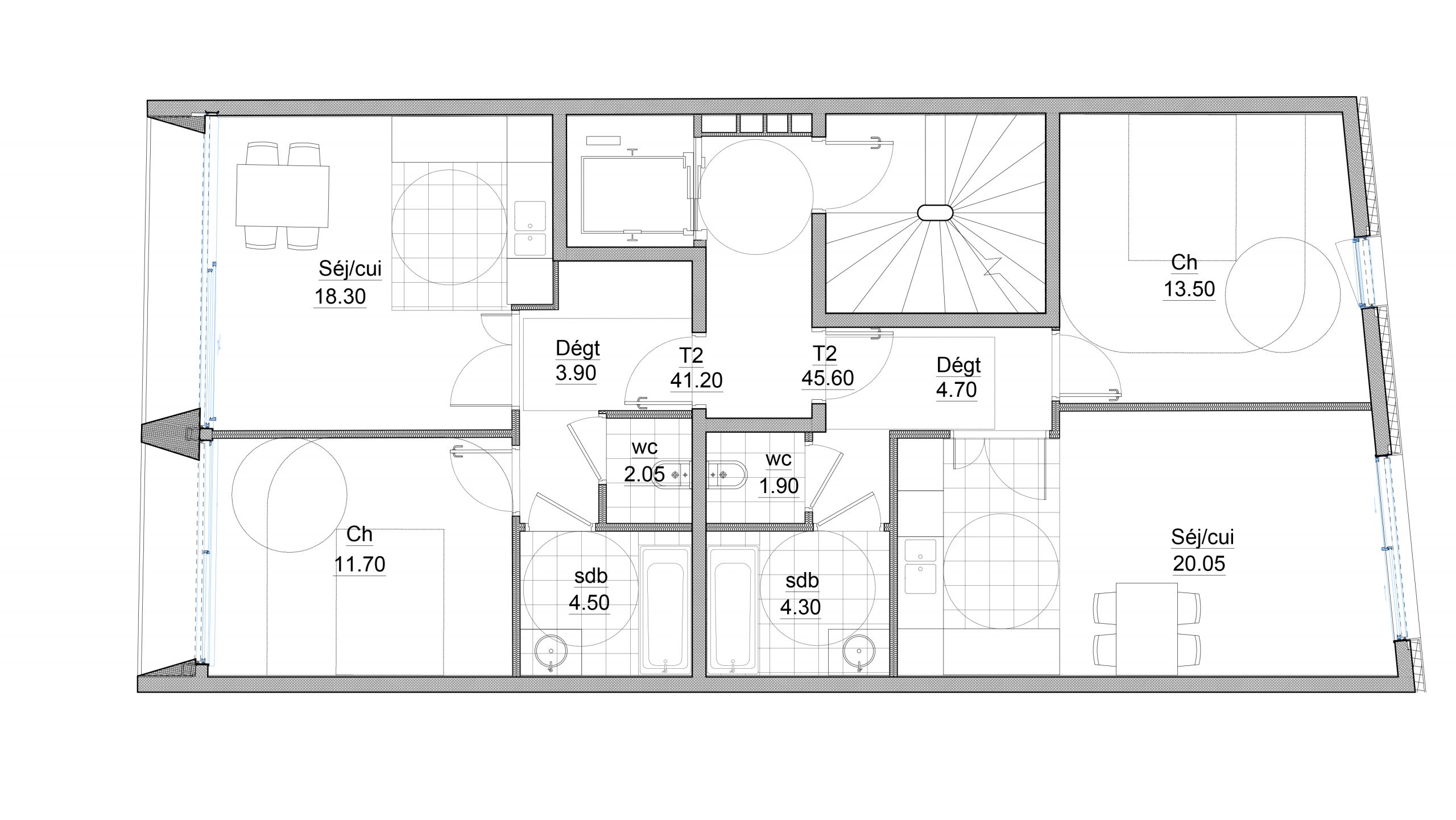
Du côté de la rue du château, le site est implanté en face du passage D’Arreau, composé d’immeubles bas permettant une vue dégagée. De l’autre Côté, la parcelle bénéficie d’une vue lointaine grâce au vide généré par les rails de chemin de fer, et de l’emprise large de l’avenue René Coty. Dès le premier étage du futur bâtiment de logements, les appartements profiteront d’une vue dégagée sur l’Hôpital La Rochefoucauld et son jardin arrière ; au dernier étage, la vue se dégage et file jusqu’à la Tour Montparnasse. Nous veillerons à ce que le projet s’insère avec justesse dans la parcelle en tirant parti de cette double exposition et du dégagement des vues, par le traitement de son implantation volumétrique mais aussi dans l’agencement des typologies de logements et de leur orientation. La parcelle restreinte limite la hauteur de la façade arrière tout en imposant certaines orientations qui en feront sa richesse (création de terrasses en gradin / retrait).
Notre démarche est de présenter pour ce site une architecture responsable et sensible.
Nous souhaitons concevoir une architecture marquée par une rigueur constructive qui prend la forme d’un bâtiment exemplaire en termes de qualité environnementale et de développement durable, un bâtiment vertueux à faible empreinte carbone et « biosourcé ».
Par l’utilisation de matériaux de construction nobles, pérennes et éco-responsables nous cherchons à faire écho au patrimoine parisien dans une démarche de renouvellement urbain contemporain. Les dispositions de la parcelle et l’échelle du projet, nous conduisent à proposer pour ce programme un édifice dont l’ossature primaire structurelle des logements sera assemblée en filière sèche grâce à l’assemblage de murs en bloc de pierre massive et une ossature en bois massif pour les planchers et façades en attique. Rappelons, que la construction en filière sèche est peu énergivore à construire, à entretenir, peu polluante, à faibles nuisances, facilement intégrable et recyclable en fin de vie. La conception d’un immeuble de logement en structure mixte pierre / bois nous permettra par ailleurs d’obtenir les labels « bâtiment bi source » et E+/C-.
Date:
octobre 15, 2024


