Aubervilliers
Le quartier est résidentiel avec des volumes très hétéroclites, un linéaire de bâti en forme de paquebot constitue le front urbain de la rue des cités d’un côté et de l’autre le lycée le Corbusier.
Deux immeubles de trois niveaux plus combles se succèdent pour faire la proue parcelle 107.
Cette silhouette en gradation annonce une possibilité d’un volume futur qui assume la silhouette en dégradé.
Projet :
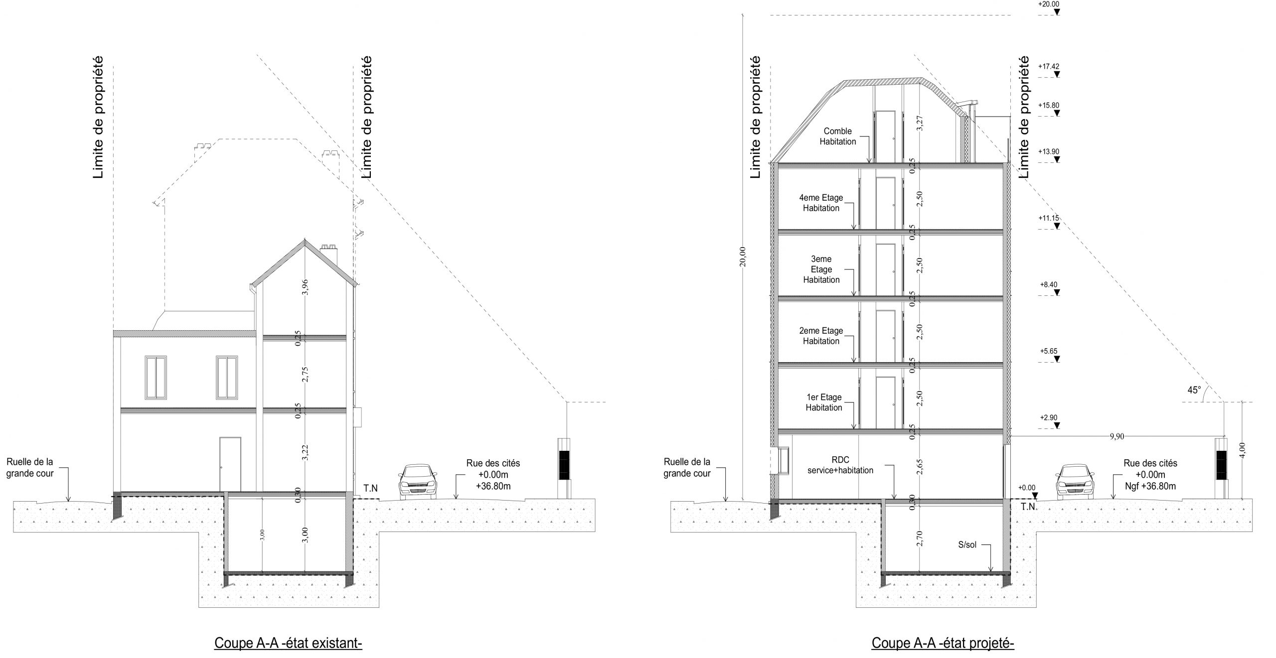
Il s’agit pour ce projet de construire un petit ensemble de logement collectif sur 5 étages.
Un appartement deux pièces de plein pied et accessible aux personnes à mobilité réduite, se situe au rez-de-chaussée.
Deux appartements (T2 + T3) sont ensuite desservis à chacun des étages.
L’ensemble du projet totalise donc dix logements.
Ainsi qu’un local d’activité traversant au rdc.
Tous les appartements sont traversant et jouiront d’une orientation Est côté rue (des cités) et Ouest côté impasse (grande Cour).
Des fenêtres de grandes dimensions ainsi que des plus petites composent la façade sur rue. Des grandes baies à chaque niveau sur rue disposés judicieusement animent la façade.
Le rez-de-chaussée se dessine en un soubassement dont l’entrée vitrée sépare la partie activité des parties communes local poubelle et le local vélos

